The Nauvoo Home of Apostle Heber C. Kimball

Blog #83

By Kevin V. Hunt

Heber C. Kimball was one of the original Apostles called in the modern dispensation. He was called to this office in 1835 through the Prophet, Joseph Smith. He was a devoted friend to Brigham Young. The two families lived near each other in New York before either joined The Church of Jesus Christ of Latter-day Saints. He helped to construct the Kirtland Temple.

Heber was part of the original missioanry group called to Great Britain and he presided over the missionary team. He served many years as a missionary and was very successful in his labors.

Later he was called to be a counselor to Brigham Young in the First Presidency and he served faithfully in this role from 1847 through his death in 1868.

In between his many missionary assignments, he built a beautiful brick home at 9th and Munson Streets in Nauvoo. He did not long live in it before he headed west with his large family.

The home of Heber C. and Vilate Kimball has been beautifully restored and is open each day for public tours. The home was restored through the efforts of his great-grandson, Dr. J. LeRoy Kimball and is one of the most beautiful of all restored homes in Nauvoo. His home stands today as a lasting tribute and testement to his commitment to the Gospel of Jesus Christ.

Heber C. Kimball

In 1975, I (Kevin Hunt) was a “young missionary” and was privileged to serve in Nauvoo as a site guide. I was privileged to know Dr. J. LeRoy Kimball, the visionary who made possible the restoration of the Heber C. Kimball home a reality.

On my first day in Nauvoo, I remember that Dr. Kimball took me and a few other missionaries who were new to Nauvoo on a tour of the Heber C. Kimball home. He had lovingly and carefully furnished the home with the best that he could find – and I heard him twll about the home in great detail. He shared with us much of what is included below – and this material was a part of our tours of that day.

And it is interesting that I later returned to Nauvoo as a site guide (as a “senior couple” wiht my wife in 2024 and 2025. It was a great privilege and honor to once again present tours of the Kimball home to our guests who came to Nauvoo. Ind it was interesting for me to note that the home looked very much like the 1975 home in which I had taken tours. It felt “like home” as I looked around and noted that very few things had changed over those 50 years. And that is pretty amazing!

I enjoyed sharing stories of Heber C. Kimball, and his wife, Vilate Murray Kimball. I loved telling of his missioanry adventures, his challenges and his success. I have come to love this great Apostle and am happy to share with you and the world more about him.

Kevin

HEBER C. KIMBALL HOME SCRIPT 1975

Created by Dr. J. LeRoy Kimball (Who bought and restored the structure)

HEBER C. KIMBALL VINTAGE PHOTOS

Above Undated vintage photos (Left) Front of House and (Right) Back side

Above:  (Left) Unknown Date and (Right) Photo taken 1975

HEBER C. KIMBALL HOME PHOTOS – 1975

Note:  Much of Heber’s home and furnishings look very much in 2025 as they did in 1975

Above:  All photos are of the front/living room – different sides of the room

Above:  (Left) Upstairs Famiiy Room, (Center) Dining Room, and (Right) unfinished – not restored room in upper 3rd floor of the Kimball Home

Above:  (Left) Music Room of Kimball Home, and (Right) Kimball back yard structures

Below:  Bust and memorial to Dr. J. LeRoy Kimball – the visionary who restored the home of

Heber C. Kimball, his great-grandfather

  Above:  J. LeRoy Kimball bust and plaques (presently in the Nauvoo Facilities Maintenance Offices)

HEBER C. KIMBALL HOME PHOTOS – 2025

Above:  (Left) Cement plaque (in center) placed by Heber.  Says, “HCK 1843” and historic plaque located near the main entry door

Above:   Large portrait of Heber C. Kimball in modern parlor of his home

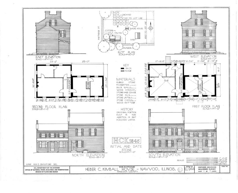
Above:  Floor plan drawing of the Heber C. Kimball Home

Above and Below:  Various upstairs bedrooms

Above:  (Left) The Kimball dining room and (Right) close-up of the plaque in left photo.  This is one of the few remaining original “Temple Plates” commissioned by Lucius Scovil while in England on mission.

OUTSIDE VIEWS OF HEBER C. KIMBALL BACK YARD 2025

Above:  Back side view of Heber C. Kimball Home -o 2025

Above:  View of back side of Wilford Woodruff home – photo taken looking diagonally from the

 backyard of Heber C. Kimball (Photo 2025 by Kevin V. Hunt)

IMAGES OF CHURCH HISTORY BY BRITISH IMMIGRANT ARTIST FREDERICK PIERCY

AS SHOWN ON HALL WALL DISPLAY IN HEBER C. KIMBALL HOME

Above:  Keokuk Camp (around 1853) Drawing by emigrant artist Piercy

The Nauvoo Heber C. Kimball home is a very beautiful home. It is well worth a stop for you and your family. A must stop on your Nauvoo trail!

Kevin V. Hunt

Leave a comment